Giàn giáo khung là gì? Cấu tạo và kích thước của chúng như nào?

Từ xưa đến nay trong quá trình thi công xây dựng không thể thiếu giàn giáo xây dựng, chúng giúp quá trình thi công được đảm bảo an toàn và tiến độ được đẩy nhanh, hiệu quả hơn. Và càng ngày thì càng có nhiều loại giàn giáo được phát triển thêm để tối ưu hơn về mức độ an toàn, chi phí.

Trong đó có giàn giáo khung, mặc dù đã xuất hiện từ lâu và có phần lép vế với những loại khác nhưng chúng vẫn được các nhà thầu, người dùng lựa chọn rất nhiều, đặc biệt là ở các công trình có quy mô vừa và nhỏ.

Hôm nay hãy cùng Hùng Sang tìm hiểu chi tiết về loại giàn giáo khung này nhé.

1. Giàn giáo khung là gì?

Giàn giáo khung hay còn có nhiều tên gọi khác như giàn giáo tiệp, giàn giáo cổ điển, giàn giáo chữ h. Khung và giằng chéo liên kết với nhau tạo thành một hệ không gian hoàn chỉnh. Khung giàn giáo và giằng chéo được sản xuất từ chất liệu thép, kim loại cứng, chắc chắn, đảm bảo tính an toàn trong quá trình làm việc trên cao, làm vị trí vững chãi cho công nhân đứng và di chuyển.

Khung giàn giáo sản xuất trên công nghệ hiện đại, hàn CO2 tân tiến, liên kết chặt chẽ, chắc chắn, chịu được tải trọng cao, có tính thẩm mỹ. Chúng có 2 biến thể chính là giàn giáo khung mạ kẽm và sơn dầu:

  • Loại mạ kẽm thì được phủ bên ngoài khung bằng một lớp kẽm, có khả năng chống oxy hóa tốt, thích nghi với mọi điều kiện khí hậu khắc nghiệt, chắc chắn hơn, tính thẩm mỹ cao.
  • Loại sơn dầu thì được phủ 1 lớp sơn dầu lên mặt khung, có tác dụng như mạ kẽm nhưng lại dễ bị bong tróc hơn, đây cũng là lý do loại mạ kẽm được lựa chọn nhiều hơn sơn dầu.

2. Cấu tạo giàn giáo khung

Giàn giáo khung được cấu tạo bởi 2 khung giàn giáo và 2 giằng chéo. Khung là bộ phận chịu lực chính, giằng chéo có tác dụng liên kết 2 khung giàn giáo, cố định chúng, chống xê dịch, gãy gập. Như các bạn đã thấy cấu tạo khung giàn giáo rất đơn giản phải không nào, nhưng hiệu quả thì rất tốt.

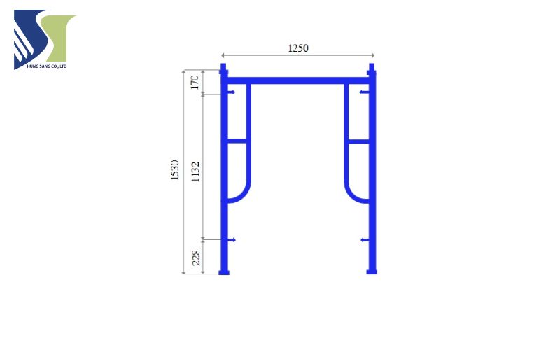
3. Kích thước giàn giáo khung

– Kích thước khung giàn giáo phổ biến hiện nay là 900mm, 1200mm, 1530mm, 1700mm.

– Kích thước giằng chéo có 2 loại là chéo 1710mm dành cho khung 900mm – 1200mm và chéo 1960mm dành cho khung 1530m – 1700mm.

Quy cách giàn giáo khung 900mm

  • Quy cách: đầu nối/ không đầu nối
  • Độ dày ống: 2mm
  • Chiều cao x rộng: 900mm x 1250mm
  • Loại: Mạ kẽm, sơn dầu, tĩnh điện
  • Màu sắc: Cam, Xanh dương, bạc kẽm…

Quy cách giàn giáo khung 1200mm

  • Quy cách: đầu nối/ không đầu nối
  • Độ dày ống : 2mm
  • Chiều cao x rộng: 1200mm x 1250mm
  • Loại: Mạ kẽm, sơn dầu, tĩnh điện
  • Màu sắc: Cam, Xanh dương, bạc kẽm…

Quy cách giàn giáo khung 1530mm

  • Quy cách: đầu nối/ không đầu nối
  • Độ dày ống : 2mm
  • Chiều cao x rộng: 1530mm x 1250mm
  • Loại: Mạ kẽm, sơn dầu, tĩnh điện
  • Màu sắc: Cam, Xanh dương, bạc kẽm…

Quy cách giàn giáo khung 1700mm

  • Quy cách: đầu nối/ không đầu nối
  • Độ dày ống: 2mm
  • Chiều cao x rộng: 1700mm x 1250mm
  • Loại: Mạ kẽm, sơn dầu, tĩnh điện
  • Màu sắc: Cam, Xanh dương, bạc kẽm…

5. Ưu điểm giàn giáo khung

Mặc dù bị lép vế trước giàn giáo nêm và ringlock nhưng giàn giáo khung vẫn được ưa chuộng và sử dụng phổ biến do:

  • Chịu lực tốt
  • Tính linh hoạt cao
  • Cấu tạo đơn giản, lắp đặt, tháo dỡ dễ dàng, vận chuyển nhanh chóng
  • Giá thành rẻ so với những loại giàn giáo khác, được sử dụng nhiều trong các công trình vừa và nhỏ

6. Giá bán, giá thuê giàn giáo khung xây dựng

Những câu hỏi phổ biến trong quá trình tư vấn khách hàng là:

  • Giá bộ giàn giáo khung là bao nhiêu?
  • 1 khung giàn giáo giá bao nhiêu?
  • Giá thuê giàn giáo khung bao nhiêu?

Chúng tôi xin trả lời như sau:

+ Một bộ khung giàn giáo sẽ có nhiều mức giá khác nhau tùy theo từng nhà sản xuất, chất liệu, chủng loai, kích thước,…Về mặt bằng chung thì giàn giáo khung mạ kẽm (đây là loại được dùng phổ biến, không như sơn dầu ít được lựa chọn) có giá dao động từ 500.000 – 700.000 VNĐ trên 1 bộ, còn cụ thể thì còn phụ thuộc vào yếu tố giá đầu vào chất liệu sắt, thép tại thời điểm bạn đặt mua hay số lượng đơn hàng, vì nếu bạn mua nhiều thì giá cũng sẽ rẻ hơn.

+ Giá thuê giàn giáo khung thì dao động từ 250 – 400 VNĐ/1 khung/1 ngày và giằng chéo là từ 100-150 VNĐ/1 cặp/1 ngày.

Nếu bạn có nhu cầu thuê giàn giáo khung giá rẻ hãy liên hệ ngay với giàn giáo Hùng Sang qua hotline 0984.737.961 – 024.6656.8286 hoặc gmail: vansangxd@gmail.com để được tư vấn, báo giá chuẩn xác nhất.

Hi vọng bài viết này hữu ích.

>>> Có thể bạn quan tâm: Chi tiết từ A đến Z về giàn giáo xây dựng

Tags: , , ,